info@sksmirnov.ru
Ежедневно с 08:00 до 20:00
Работаем без выходных
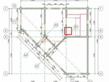
В процессе строительства бани по новому оригинальному угловому проекту. Размер 7,8х7,6 метров.
Строим из сухого профилированного бруса с компенсационными пропилами 140х140 мм.
Скоро покажем результат!

Политика конфиденциальности