info@sksmirnov.ru
Ежедневно с 08:00 до 20:00
Работаем без выходных
Строительство по авторскому проекту из клееного или сухого бруса









































































































































































Авторские проект одноэтажной бани «Шале» с необычной округлой крышей, высокими панорамными окнами и небольшой террасой. Такую баню можно построить только из сухого или клееного профилированного бруса в комплектации под ключ. Из бруса естественной влажности и под усадку построить НЕВОЗМОЖНО.
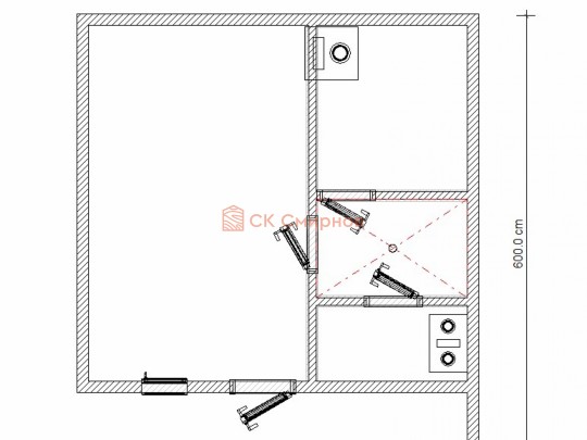
Размер 5,3 на 6 метров. Внутри 4 помещения: комната отдыха, парная, душ и санузел, где размещается душевая система. Ориентировочный срок строительства 10 дней.
Вам нравится проект №310, но вы хотели бы внести изменения? Пришлите нам сообщение с описанием, фото, планом, чертежом, эскизом или ссылкой на другой сайт, мы постараемся учесть все пожелания и сообщим точную стоимость строительства. Услуга изменения проекта бесплатная.
ПРЕЖДЕ ЧЕМ СТРОИТЬ! Определитесь заранее, чего вы на самом деле хотите: либо вы в гонке за «хочу дешевле, но неважно как», либо все-таки думаете о будущем и хотите получить качественную постройку.
Сравните два видео: результат «дома по акции» и работу СК Смирнов. Задавайте любые вопросы в комментариях ниже, руководитель СК Смирнов ответит и даст совет в области строительства.
При заказе бани с доставкой в готовом виде или сборкой на участке в 2023 году в подарок:
То есть в подарок вы получаете топовую комплектацию бани со всеми нашими последними усовершенствованиями. Редкое предложение, которым определённо стоит воспользоваться!
Профиль бруса имеет наплыв, посмотрите видео и все поймете. Этот профиль не позволяет нам экономить на количестве материала, нам нужно всегда на один ряд бруса больше чем в эконом вариантах с которыми вы нас сравниваете! но второе видео как раз все показывает что вы получите сэкономив.
В цене базовой комплектации: Ондулин зеленого, бордового или коричневого цвета. По той же цене обойдется оцинкованный профнастил. Металлочерепица без удорожания.
Печь для бани устанавливаем за дополнительную стоимость, любую, у нас есть печные магазины свои и есть доступ практически к любому производителю.
Также делаем исключительно из безсучковой осины, следующее может вам показать абсурдом, но мы делаем все дисковой пилой аккуратно, торцы доски обрабатываем наждачкой чтоб вам комфортно было сидеть. Почему я говорю про абсурд, потому что вы можете получить всю баню сделанную только бензопилой и говорить о занозах и торцах в 90 градусов, хорошем стыке не приходится. Но можно только думать и надеяться о хорошем до получения бани что вы нашли подешевле и там будет все хорошо! Полезное видео как может быть, и это не шутки.
Можно сделать парную полностью из кедровой вагонки и пологи также из кедра. Кедр не выделяем смолу и смотрится более красиво и богато, а главное более практичен, осина более подвержена плесневению так как не содержит смол.
Если мы устанавливаем печь то поверьте, под печью, бок у стены, проход через стену будет сделан из кирпича, красиво, аккуратно, безопасно и с некоторых пор мы устанавливаем кирпич гладкий и красивый с двух сторон, раньше 99% кирпича имели одну сторону красивую, это сторона выходила в комнату отдыха, а в парной было ужасно. Но мы нашли свой кирпич и теперь выглядит это достойно с двух сторон. Еще видео что мы встречали в своей практике. Но по факту все же сделано, только как.
Наши бригады приедут к вам с внушительным набором инструмента и поверьте, наличники, плинтуса, вагонка будут за пилены аккуратно, а не бензопилой. Мы бы хотели взглянуть на отрывок видео когда уже как говорится крыльями махать поздно, плотники "молотка и топора", другого инструмента у них нет.
Мы сверлим отверстия в верхнем брусе, смотрите видео и пометьте для себя этот не маловажный фактор.
На время строительства необходимо предоставить проживание для бригады. Если жилье отсутствует то мы предоставим бытовку для проживания, она платная и останется после завершения строительства у вас.
Окна мы устанавливаем настоящие деревянные стеклопакеты с фурнитурой как на пластиковых окнах, дерево используется клееное, повторюсь, не имитация деревянных стеклопакетов, а именно качественные окна.
Такие детали которые не стоит выделять в отдельный пунк входят в стоимость, это: руберойд на фундамент, джут меду венцами, петли на дверях,
Обязательный элемент брусового дома или бани, это брусок в пиленный в брус в проем двери или окна не менее 50х50мм. Обязательно должен оставаться зазор сверху на усадку и этот брусок не должен быть жёстко закреплен в проеме. В некоторых случаях внутри помещения ставим металлические ройки, уточняйте. Посмотрите отрывок видео как могут повести себя стены
Устанавливаем вполне достойный вариант лестницы, клееные ступени, перила и балясины точеные, столбы и направляющие из строганного бруса. Посмотрите видео на что можно наткнуться не разбираясь в вопросах застройщика.
Потолки, стены вансардного каркасного этажа ( если он есть ) обшиваются сухой вагонкой.
На террасе при условии что она есть делаем перила из строганной доски со всех сторон, столбы террасные также строганные, а не обрезки профилированного бруса с шипом и пазом. Домкратики на столбах для дальнейшей регулировки. Балясины будут сделаны аккуратно. Обратите внимание что в дешёвых случаях это может быть и будет просто вагонка прибирая к неотесанной доске снаружи и столбы будут не квадратные а просто профилированный брус как на видео.
Лаги, обвязку и черновой пол обрабатываем раствором био огне защитой ( зимой оговариваются отдельные условия ), в основном красный цвет, но может быть и бесцветная обработка.
Собираем как и многие в Теплый угол, хотя честно это название не заслуженно дано этому углу, делаем аккуратно и красиво, посмотрите видео как можно попасть с бригадой.
При заказе бани с доставкой в готовом виде или сборкой на участке в 2023 году в подарок:
То есть в подарок вы получаете топовую комплектацию бани со всеми нашими последними усовершенствованиями. Редкое предложение, которым определённо стоит воспользоваться!
Профиль бруса имеет наплыв, посмотрите видео и все поймете. Этот профиль не позволяет нам экономить на количестве материала, нам нужно всегда на один ряд бруса больше чем в эконом вариантах с которыми вы нас сравниваете! но второе видео как раз все показывает что вы получите сэкономив.
В цене базовой комплектации: Ондулин зеленого, бордового или коричневого цвета. По той же цене обойдется оцинкованный профнастил. Металлочерепица без удорожания.
Печь для бани устанавливаем за дополнительную стоимость, любую, у нас есть печные магазины свои и есть доступ практически к любому производителю.
Также делаем исключительно из безсучковой осины, следующее может вам показать абсурдом, но мы делаем все дисковой пилой аккуратно, торцы доски обрабатываем наждачкой чтоб вам комфортно было сидеть. Почему я говорю про абсурд, потому что вы можете получить всю баню сделанную только бензопилой и говорить о занозах и торцах в 90 градусов, хорошем стыке не приходится. Но можно только думать и надеяться о хорошем до получения бани что вы нашли подешевле и там будет все хорошо! Полезное видео как может быть, и это не шутки.
Можно сделать парную полностью из кедровой вагонки и пологи также из кедра. Кедр не выделяем смолу и смотрится более красиво и богато, а главное более практичен, осина более подвержена плесневению так как не содержит смол.
Если мы устанавливаем печь то поверьте, под печью, бок у стены, проход через стену будет сделан из кирпича, красиво, аккуратно, безопасно и с некоторых пор мы устанавливаем кирпич гладкий и красивый с двух сторон, раньше 99% кирпича имели одну сторону красивую, это сторона выходила в комнату отдыха, а в парной было ужасно. Но мы нашли свой кирпич и теперь выглядит это достойно с двух сторон. Еще видео что мы встречали в своей практике. Но по факту все же сделано, только как.
Наши бригады приедут к вам с внушительным набором инструмента и поверьте, наличники, плинтуса, вагонка будут за пилены аккуратно, а не бензопилой. Мы бы хотели взглянуть на отрывок видео когда уже как говорится крыльями махать поздно, плотники "молотка и топора", другого инструмента у них нет.
Мы сверлим отверстия в верхнем брусе, смотрите видео и пометьте для себя этот не маловажный фактор.
На время строительства необходимо предоставить проживание для бригады. Если жилье отсутствует то мы предоставим бытовку для проживания, она платная и останется после завершения строительства у вас.
Окна мы устанавливаем настоящие деревянные стеклопакеты с фурнитурой как на пластиковых окнах, дерево используется клееное, повторюсь, не имитация деревянных стеклопакетов, а именно качественные окна.
Такие детали которые не стоит выделять в отдельный пунк входят в стоимость, это: руберойд на фундамент, джут меду венцами, петли на дверях,
Обязательный элемент брусового дома или бани, это брусок в пиленный в брус в проем двери или окна не менее 50х50мм. Обязательно должен оставаться зазор сверху на усадку и этот брусок не должен быть жёстко закреплен в проеме. В некоторых случаях внутри помещения ставим металлические ройки, уточняйте. Посмотрите отрывок видео как могут повести себя стены
Устанавливаем вполне достойный вариант лестницы, клееные ступени, перила и балясины точеные, столбы и направляющие из строганного бруса. Посмотрите видео на что можно наткнуться не разбираясь в вопросах застройщика.
Потолки, стены вансардного каркасного этажа ( если он есть ) обшиваются сухой вагонкой.
На террасе при условии что она есть делаем перила из строганной доски со всех сторон, столбы террасные также строганные, а не обрезки профилированного бруса с шипом и пазом. Домкратики на столбах для дальнейшей регулировки. Балясины будут сделаны аккуратно. Обратите внимание что в дешёвых случаях это может быть и будет просто вагонка прибирая к неотесанной доске снаружи и столбы будут не квадратные а просто профилированный брус как на видео.
Лаги, обвязку и черновой пол обрабатываем раствором био огне защитой ( зимой оговариваются отдельные условия ), в основном красный цвет, но может быть и бесцветная обработка.
Собираем как и многие в Теплый угол, хотя честно это название не заслуженно дано этому углу, делаем аккуратно и красиво, посмотрите видео как можно попасть с бригадой.
При заказе бани с доставкой в готовом виде или сборкой на участке в 2023 году в подарок:
То есть в подарок вы получаете топовую комплектацию бани со всеми нашими последними усовершенствованиями. Редкое предложение, которым определённо стоит воспользоваться!
Профиль бруса имеет наплыв, посмотрите видео и все поймете. Этот профиль не позволяет нам экономить на количестве материала, нам нужно всегда на один ряд бруса больше чем в эконом вариантах с которыми вы нас сравниваете! но второе видео как раз все показывает что вы получите сэкономив.
В цене базовой комплектации: Ондулин зеленого, бордового или коричневого цвета. По той же цене обойдется оцинкованный профнастил. Металлочерепица без удорожания.
Печь для бани устанавливаем за дополнительную стоимость, любую, у нас есть печные магазины свои и есть доступ практически к любому производителю.
Также делаем исключительно из безсучковой осины, следующее может вам показать абсурдом, но мы делаем все дисковой пилой аккуратно, торцы доски обрабатываем наждачкой чтоб вам комфортно было сидеть. Почему я говорю про абсурд, потому что вы можете получить всю баню сделанную только бензопилой и говорить о занозах и торцах в 90 градусов, хорошем стыке не приходится. Но можно только думать и надеяться о хорошем до получения бани что вы нашли подешевле и там будет все хорошо! Полезное видео как может быть, и это не шутки.
Можно сделать парную полностью из кедровой вагонки и пологи также из кедра. Кедр не выделяем смолу и смотрится более красиво и богато, а главное более практичен, осина более подвержена плесневению так как не содержит смол.
Если мы устанавливаем печь то поверьте, под печью, бок у стены, проход через стену будет сделан из кирпича, красиво, аккуратно, безопасно и с некоторых пор мы устанавливаем кирпич гладкий и красивый с двух сторон, раньше 99% кирпича имели одну сторону красивую, это сторона выходила в комнату отдыха, а в парной было ужасно. Но мы нашли свой кирпич и теперь выглядит это достойно с двух сторон. Еще видео что мы встречали в своей практике. Но по факту все же сделано, только как.
Наши бригады приедут к вам с внушительным набором инструмента и поверьте, наличники, плинтуса, вагонка будут за пилены аккуратно, а не бензопилой. Мы бы хотели взглянуть на отрывок видео когда уже как говорится крыльями махать поздно, плотники "молотка и топора", другого инструмента у них нет.
Мы сверлим отверстия в верхнем брусе, смотрите видео и пометьте для себя этот не маловажный фактор.
На время строительства необходимо предоставить проживание для бригады. Если жилье отсутствует то мы предоставим бытовку для проживания, она платная и останется после завершения строительства у вас.
Окна мы устанавливаем настоящие деревянные стеклопакеты с фурнитурой как на пластиковых окнах, дерево используется клееное, повторюсь, не имитация деревянных стеклопакетов, а именно качественные окна.
Такие детали которые не стоит выделять в отдельный пунк входят в стоимость, это: руберойд на фундамент, джут меду венцами, петли на дверях,
Обязательный элемент брусового дома или бани, это брусок в пиленный в брус в проем двери или окна не менее 50х50мм. Обязательно должен оставаться зазор сверху на усадку и этот брусок не должен быть жёстко закреплен в проеме. В некоторых случаях внутри помещения ставим металлические ройки, уточняйте. Посмотрите отрывок видео как могут повести себя стены
Устанавливаем вполне достойный вариант лестницы, клееные ступени, перила и балясины точеные, столбы и направляющие из строганного бруса. Посмотрите видео на что можно наткнуться не разбираясь в вопросах застройщика.
Потолки, стены вансардного каркасного этажа ( если он есть ) обшиваются сухой вагонкой.
На террасе при условии что она есть делаем перила из строганной доски со всех сторон, столбы террасные также строганные, а не обрезки профилированного бруса с шипом и пазом. Домкратики на столбах для дальнейшей регулировки. Балясины будут сделаны аккуратно. Обратите внимание что в дешёвых случаях это может быть и будет просто вагонка прибирая к неотесанной доске снаружи и столбы будут не квадратные а просто профилированный брус как на видео.
Лаги, обвязку и черновой пол обрабатываем раствором био огне защитой ( зимой оговариваются отдельные условия ), в основном красный цвет, но может быть и бесцветная обработка.
Собираем как и многие в Теплый угол, хотя честно это название не заслуженно дано этому углу, делаем аккуратно и красиво, посмотрите видео как можно попасть с бригадой.
При заказе бани с доставкой в готовом виде или сборкой на участке в 2023 году в подарок:
То есть в подарок вы получаете топовую комплектацию бани со всеми нашими последними усовершенствованиями. Редкое предложение, которым определённо стоит воспользоваться!
Профиль бруса имеет наплыв, посмотрите видео и все поймете. Этот профиль не позволяет нам экономить на количестве материала, нам нужно всегда на один ряд бруса больше чем в эконом вариантах с которыми вы нас сравниваете! но второе видео как раз все показывает что вы получите сэкономив.
В цене базовой комплектации: Ондулин зеленого, бордового или коричневого цвета. По той же цене обойдется оцинкованный профнастил. Металлочерепица без удорожания.
Печь для бани устанавливаем за дополнительную стоимость, любую, у нас есть печные магазины свои и есть доступ практически к любому производителю.
Также делаем исключительно из безсучковой осины, следующее может вам показать абсурдом, но мы делаем все дисковой пилой аккуратно, торцы доски обрабатываем наждачкой чтоб вам комфортно было сидеть. Почему я говорю про абсурд, потому что вы можете получить всю баню сделанную только бензопилой и говорить о занозах и торцах в 90 градусов, хорошем стыке не приходится. Но можно только думать и надеяться о хорошем до получения бани что вы нашли подешевле и там будет все хорошо! Полезное видео как может быть, и это не шутки.
Можно сделать парную полностью из кедровой вагонки и пологи также из кедра. Кедр не выделяем смолу и смотрится более красиво и богато, а главное более практичен, осина более подвержена плесневению так как не содержит смол.
Если мы устанавливаем печь то поверьте, под печью, бок у стены, проход через стену будет сделан из кирпича, красиво, аккуратно, безопасно и с некоторых пор мы устанавливаем кирпич гладкий и красивый с двух сторон, раньше 99% кирпича имели одну сторону красивую, это сторона выходила в комнату отдыха, а в парной было ужасно. Но мы нашли свой кирпич и теперь выглядит это достойно с двух сторон. Еще видео что мы встречали в своей практике. Но по факту все же сделано, только как.
Наши бригады приедут к вам с внушительным набором инструмента и поверьте, наличники, плинтуса, вагонка будут за пилены аккуратно, а не бензопилой. Мы бы хотели взглянуть на отрывок видео когда уже как говорится крыльями махать поздно, плотники "молотка и топора", другого инструмента у них нет.
Мы сверлим отверстия в верхнем брусе, смотрите видео и пометьте для себя этот не маловажный фактор.
На время строительства необходимо предоставить проживание для бригады. Если жилье отсутствует то мы предоставим бытовку для проживания, она платная и останется после завершения строительства у вас.
Окна мы устанавливаем настоящие деревянные стеклопакеты с фурнитурой как на пластиковых окнах, дерево используется клееное, повторюсь, не имитация деревянных стеклопакетов, а именно качественные окна.
Такие детали которые не стоит выделять в отдельный пунк входят в стоимость, это: руберойд на фундамент, джут меду венцами, петли на дверях,
Обязательный элемент брусового дома или бани, это брусок в пиленный в брус в проем двери или окна не менее 50х50мм. Обязательно должен оставаться зазор сверху на усадку и этот брусок не должен быть жёстко закреплен в проеме. В некоторых случаях внутри помещения ставим металлические ройки, уточняйте. Посмотрите отрывок видео как могут повести себя стены
Устанавливаем вполне достойный вариант лестницы, клееные ступени, перила и балясины точеные, столбы и направляющие из строганного бруса. Посмотрите видео на что можно наткнуться не разбираясь в вопросах застройщика.
Потолки, стены вансардного каркасного этажа ( если он есть ) обшиваются сухой вагонкой.
На террасе при условии что она есть делаем перила из строганной доски со всех сторон, столбы террасные также строганные, а не обрезки профилированного бруса с шипом и пазом. Домкратики на столбах для дальнейшей регулировки. Балясины будут сделаны аккуратно. Обратите внимание что в дешёвых случаях это может быть и будет просто вагонка прибирая к неотесанной доске снаружи и столбы будут не квадратные а просто профилированный брус как на видео.
Лаги, обвязку и черновой пол обрабатываем раствором био огне защитой ( зимой оговариваются отдельные условия ), в основном красный цвет, но может быть и бесцветная обработка.
Собираем как и многие в Теплый угол, хотя честно это название не заслуженно дано этому углу, делаем аккуратно и красиво, посмотрите видео как можно попасть с бригадой.
При заказе бани с доставкой в готовом виде или сборкой на участке в 2023 году в подарок:
То есть в подарок вы получаете топовую комплектацию бани со всеми нашими последними усовершенствованиями. Редкое предложение, которым определённо стоит воспользоваться!
Профиль бруса имеет наплыв, посмотрите видео и все поймете. Этот профиль не позволяет нам экономить на количестве материала, нам нужно всегда на один ряд бруса больше чем в эконом вариантах с которыми вы нас сравниваете! но второе видео как раз все показывает что вы получите сэкономив.
В цене базовой комплектации: Ондулин зеленого, бордового или коричневого цвета. По той же цене обойдется оцинкованный профнастил. Металлочерепица без удорожания.
Печь для бани устанавливаем за дополнительную стоимость, любую, у нас есть печные магазины свои и есть доступ практически к любому производителю.
Также делаем исключительно из безсучковой осины, следующее может вам показать абсурдом, но мы делаем все дисковой пилой аккуратно, торцы доски обрабатываем наждачкой чтоб вам комфортно было сидеть. Почему я говорю про абсурд, потому что вы можете получить всю баню сделанную только бензопилой и говорить о занозах и торцах в 90 градусов, хорошем стыке не приходится. Но можно только думать и надеяться о хорошем до получения бани что вы нашли подешевле и там будет все хорошо! Полезное видео как может быть, и это не шутки.
Можно сделать парную полностью из кедровой вагонки и пологи также из кедра. Кедр не выделяем смолу и смотрится более красиво и богато, а главное более практичен, осина более подвержена плесневению так как не содержит смол.
Если мы устанавливаем печь то поверьте, под печью, бок у стены, проход через стену будет сделан из кирпича, красиво, аккуратно, безопасно и с некоторых пор мы устанавливаем кирпич гладкий и красивый с двух сторон, раньше 99% кирпича имели одну сторону красивую, это сторона выходила в комнату отдыха, а в парной было ужасно. Но мы нашли свой кирпич и теперь выглядит это достойно с двух сторон. Еще видео что мы встречали в своей практике. Но по факту все же сделано, только как.
Наши бригады приедут к вам с внушительным набором инструмента и поверьте, наличники, плинтуса, вагонка будут за пилены аккуратно, а не бензопилой. Мы бы хотели взглянуть на отрывок видео когда уже как говорится крыльями махать поздно, плотники "молотка и топора", другого инструмента у них нет.
Мы сверлим отверстия в верхнем брусе, смотрите видео и пометьте для себя этот не маловажный фактор.
На время строительства необходимо предоставить проживание для бригады. Если жилье отсутствует то мы предоставим бытовку для проживания, она платная и останется после завершения строительства у вас.
Окна мы устанавливаем настоящие деревянные стеклопакеты с фурнитурой как на пластиковых окнах, дерево используется клееное, повторюсь, не имитация деревянных стеклопакетов, а именно качественные окна.
Такие детали которые не стоит выделять в отдельный пунк входят в стоимость, это: руберойд на фундамент, джут меду венцами, петли на дверях,
Обязательный элемент брусового дома или бани, это брусок в пиленный в брус в проем двери или окна не менее 50х50мм. Обязательно должен оставаться зазор сверху на усадку и этот брусок не должен быть жёстко закреплен в проеме. В некоторых случаях внутри помещения ставим металлические ройки, уточняйте. Посмотрите отрывок видео как могут повести себя стены
Устанавливаем вполне достойный вариант лестницы, клееные ступени, перила и балясины точеные, столбы и направляющие из строганного бруса. Посмотрите видео на что можно наткнуться не разбираясь в вопросах застройщика.
Потолки, стены вансардного каркасного этажа ( если он есть ) обшиваются сухой вагонкой.
На террасе при условии что она есть делаем перила из строганной доски со всех сторон, столбы террасные также строганные, а не обрезки профилированного бруса с шипом и пазом. Домкратики на столбах для дальнейшей регулировки. Балясины будут сделаны аккуратно. Обратите внимание что в дешёвых случаях это может быть и будет просто вагонка прибирая к неотесанной доске снаружи и столбы будут не квадратные а просто профилированный брус как на видео.
Лаги, обвязку и черновой пол обрабатываем раствором био огне защитой ( зимой оговариваются отдельные условия ), в основном красный цвет, но может быть и бесцветная обработка.
Собираем как и многие в Теплый угол, хотя честно это название не заслуженно дано этому углу, делаем аккуратно и красиво, посмотрите видео как можно попасть с бригадой.
При заказе бани с доставкой в готовом виде или сборкой на участке в 2023 году в подарок:
То есть в подарок вы получаете топовую комплектацию бани со всеми нашими последними усовершенствованиями. Редкое предложение, которым определённо стоит воспользоваться!
Профиль бруса имеет наплыв, посмотрите видео и все поймете. Этот профиль не позволяет нам экономить на количестве материала, нам нужно всегда на один ряд бруса больше чем в эконом вариантах с которыми вы нас сравниваете! но второе видео как раз все показывает что вы получите сэкономив.
В цене базовой комплектации: Ондулин зеленого, бордового или коричневого цвета. По той же цене обойдется оцинкованный профнастил. Металлочерепица без удорожания.
Печь для бани устанавливаем за дополнительную стоимость, любую, у нас есть печные магазины свои и есть доступ практически к любому производителю.
Также делаем исключительно из безсучковой осины, следующее может вам показать абсурдом, но мы делаем все дисковой пилой аккуратно, торцы доски обрабатываем наждачкой чтоб вам комфортно было сидеть. Почему я говорю про абсурд, потому что вы можете получить всю баню сделанную только бензопилой и говорить о занозах и торцах в 90 градусов, хорошем стыке не приходится. Но можно только думать и надеяться о хорошем до получения бани что вы нашли подешевле и там будет все хорошо! Полезное видео как может быть, и это не шутки.
Можно сделать парную полностью из кедровой вагонки и пологи также из кедра. Кедр не выделяем смолу и смотрится более красиво и богато, а главное более практичен, осина более подвержена плесневению так как не содержит смол.
Если мы устанавливаем печь то поверьте, под печью, бок у стены, проход через стену будет сделан из кирпича, красиво, аккуратно, безопасно и с некоторых пор мы устанавливаем кирпич гладкий и красивый с двух сторон, раньше 99% кирпича имели одну сторону красивую, это сторона выходила в комнату отдыха, а в парной было ужасно. Но мы нашли свой кирпич и теперь выглядит это достойно с двух сторон. Еще видео что мы встречали в своей практике. Но по факту все же сделано, только как.
Наши бригады приедут к вам с внушительным набором инструмента и поверьте, наличники, плинтуса, вагонка будут за пилены аккуратно, а не бензопилой. Мы бы хотели взглянуть на отрывок видео когда уже как говорится крыльями махать поздно, плотники "молотка и топора", другого инструмента у них нет.
Мы сверлим отверстия в верхнем брусе, смотрите видео и пометьте для себя этот не маловажный фактор.
На время строительства необходимо предоставить проживание для бригады. Если жилье отсутствует то мы предоставим бытовку для проживания, она платная и останется после завершения строительства у вас.
Окна мы устанавливаем настоящие деревянные стеклопакеты с фурнитурой как на пластиковых окнах, дерево используется клееное, повторюсь, не имитация деревянных стеклопакетов, а именно качественные окна.
Такие детали которые не стоит выделять в отдельный пунк входят в стоимость, это: руберойд на фундамент, джут меду венцами, петли на дверях,
Обязательный элемент брусового дома или бани, это брусок в пиленный в брус в проем двери или окна не менее 50х50мм. Обязательно должен оставаться зазор сверху на усадку и этот брусок не должен быть жёстко закреплен в проеме. В некоторых случаях внутри помещения ставим металлические ройки, уточняйте. Посмотрите отрывок видео как могут повести себя стены
Устанавливаем вполне достойный вариант лестницы, клееные ступени, перила и балясины точеные, столбы и направляющие из строганного бруса. Посмотрите видео на что можно наткнуться не разбираясь в вопросах застройщика.
Потолки, стены вансардного каркасного этажа ( если он есть ) обшиваются сухой вагонкой.
На террасе при условии что она есть делаем перила из строганной доски со всех сторон, столбы террасные также строганные, а не обрезки профилированного бруса с шипом и пазом. Домкратики на столбах для дальнейшей регулировки. Балясины будут сделаны аккуратно. Обратите внимание что в дешёвых случаях это может быть и будет просто вагонка прибирая к неотесанной доске снаружи и столбы будут не квадратные а просто профилированный брус как на видео.
Лаги, обвязку и черновой пол обрабатываем раствором био огне защитой ( зимой оговариваются отдельные условия ), в основном красный цвет, но может быть и бесцветная обработка.
Собираем как и многие в Теплый угол, хотя честно это название не заслуженно дано этому углу, делаем аккуратно и красиво, посмотрите видео как можно попасть с бригадой.

Используем брус с финским профилем с наплывом

Сборка сруба со сверлением (аналог проужинного узла)
Не нашли нужной услуги? Возможно, мы просто забыли её добавить. Пожалуйста, уточните у менеджера возможность внесения изменений по вашему желанию. Мы стараемся всегда идти навстречу клиенту (если это противоречит законам физики).
Стоимость доставки материалов зависит от расстояния до места строительства — тариф 80 руб/км от Великого Новгорода.
Расчёт цены по калькулятору лишь ориентировочный — для проектов большой площади необходимо отправлять 2 грузовика, соответственно стоимость увеличится в 2 раза.
Если вы не нашли Вашего населённого пункта, воспользуйтесь поиском по карте или напишите на почту sksmirnov@mail.ru
Если технология строительства пережила много поколений и до сих пор используется — значит это хорошая технология. Мы строим дома из профилированного бруса с 2007 года и сильно продвинулись в этом направлении. В СК Смирнов используются 2 особенности при сборке сруба, на которые большинство компаний не тратят времени:
Практически все строительные компании, ориентирующиеся на средний класс, закупаются на одной базе. Мы же делаем брус самостоятельно. Наша фишка — удлинённый наплыв по бокам бруска. При сборке сруба наплыв верхнего венца закрывает нижний на 2-3 см. Этого хватает, чтобы обеспечить герметичное соединение и предотвратить появление межвенцовых щелей во время усадки. Это очень важно при бюджетном строительстве из бруса естественной влажности, который без вариантов даст высокую степень усадки.

Главная проблема брусовых домов — усадка, после которой в срубе возникают щели в палец толщиной. Так случается, когда строят из дешёвого сырого бруса, плотно сажая венцы на гвозди (деревянные или металлические — без разницы). Мы же тратим время на сборку со сверлением. То есть сажаем брусья на металлические гвозди и в верхнем венце высверливаем отверстие под каждую шляпку. Поэтому во время усадки бруски не зависают на гвоздях, деформируя сруб, а свободно по ним скользят. Технология трудо- и времязатратная, но результат потрясающий — даже в срубах из сырого бруса практически нет щелей.

От первого звонка нашему менеджеру до начала строительства может пройти от месяца до года — зависит от сложности и согласования проекта. Расскажем про типичный заказ:

Политика конфиденциальности